CASAMAR Pompano Beach!

CASAMAR Pompano Beach | New Oceanfront Development by The Related Group

A NEW OCEANFRONT DEVELOPMENT

BY THE RELATED GROUP...


CASAMAR is located two lots south of Solemar on the ocean in Pompano Beach.

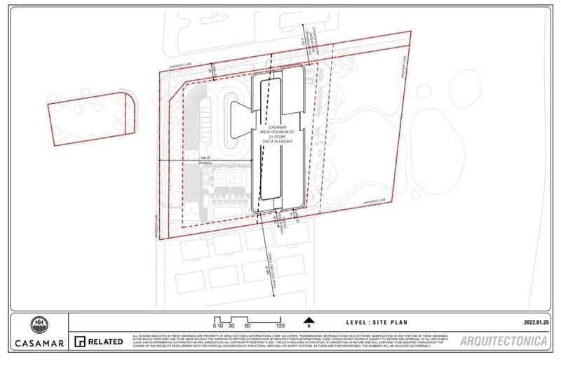
Our Site Address is 900 N Ocean Boulevard, Pompano Beach.

This stunning 21-story oceanfront tower sits on 3.2 acres with 283 linear feet of oceanfront. Developed by the Related Group and designed by Arquitectonica.


Casamar will have 119 Direct Oceanfront Residences, compiled mainly of spacious Three and Four Bedroom Residences with some Two-Bedroom Residences.


Deposit Schedule:

10% at signing, 10% in 60 days, 10% at Top Off (Est. Q1 of 2024)


Ceiling Heights:

9’4” for the 4th-19th floors. Lower, Middle and Upper PH TBD


Maintenance:

Approximately $0.98 PSF


Estimated Construction Timeline:

Ground Breaking - Q1 2023 | Top Off - Q1 2024 | Completion - Q1 2025


Services & Amenities

  • Personalized concierge services to assist residents

  • Sunrise and Sunset swimming pools overlooking the Atlantic Ocean and the Intracoastal Waterway, featuring cabanas as well as food and beverage options

  • Beach Club Feel - Attendants to set up Lounge Chairs and Umbrellas

  • Pool Attendants

  • The Promenade Lounge, offering a variety of gathering areas with breathtaking views of the Atlantic Ocean

  • Fitness center inclusive of his and her saunas overlooking the tropical poolside sanctuary and ocean

  • Club Room with multimedia and gaming table

  • Two Private Party Rooms with full catering kitchen

  • Virtual Reality Golf Simulator Room, inclusive of mini bar.

  • Lobby Welcome Station serving coffee and light bites

  • Open green gathering spaces

  • Sunset Pool Summer Kitchen BBQ grills

  • Relaxing outdoor lounges

  • Pickle ball court

  • 24/7 Valet Parking

  • On-premises security

  • Water Sport Storage

  • Pet Wash Area


Pets Permitted - No aggressive breeds

Leasing Permitted - Minimum of 4 months

DEVELOPER: The Related Group; https://www.relatedgroup.com/

Established in 1979, The Related Group is Florida's leading developer of sophisticated metropolitan living and one of the country's largest real estate conglomerates. Since its inception, the privately held company has built, rehabilitated and managed over 100,000 condominium, rental and commercial units. The firm is one of the largest Hispanic-owned businesses in the U.S. with a development portfolio in excess of $40 billion in 40+ years.


RESIDENTIAL ARCHITECT: Arquitectonica; https://arquitectonica.com/;

Arquitectonica is an international architecture, landscape architecture, interior design and urban planning corporation headquartered in Miami, Florida’s Coconut Grove neighborhood. Arquitectonica was founded in 1977 by Peruvian architect Bernardo Fort-Brescia, Laurinda Hope Spear, Andrés Duany, Elizabeth PlaterZyberk and Hervin Romney. The firm has designed such famous buildings as the Banco de Crédito Headquarters, in Lima, Peru, Atlantis Condominium in Miami, The Pink House in Miami, the FTX Arena (formerly American Airlines Arena) in Miami and the Westin Hotel and entertainment complex in New York, amongst many others.


RESIDENTIAL INTERIOR DESIGNER: Rockwell Group https://www.rockwellgroup.com/

With global offices to support a far-reaching vision, Rockwell Group is an interdisciplinary firm that emphasizes innovation and thought leadership in every project. Founded in 1984 by David Rockwell and led by partners Shawn Sullivan and Greg Keffer, we create extraordinary experiences and built environments the world over.





Please complete the form to access all the details about Savona Homes in Oakland Park Fl

<